cad

CADデータ

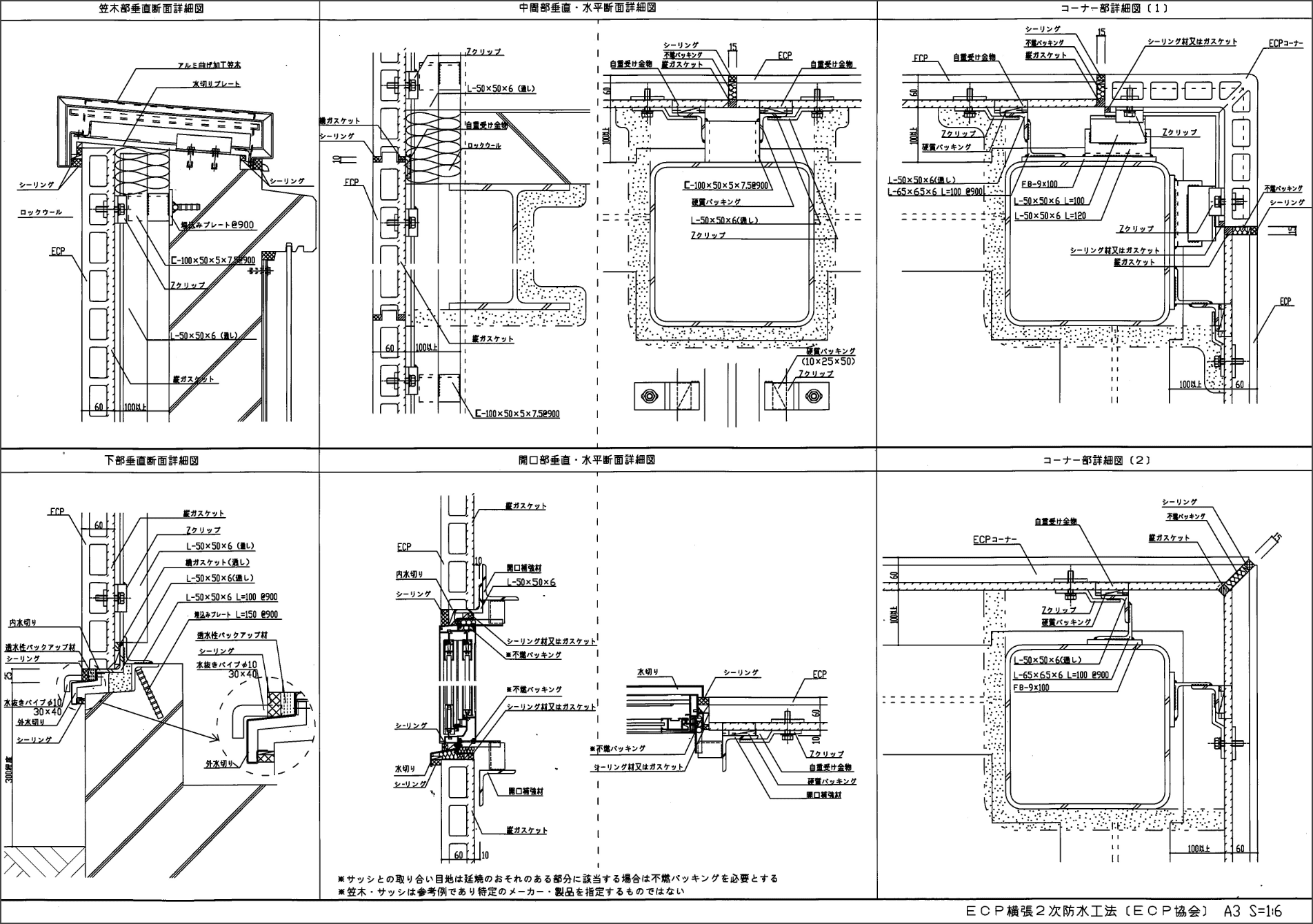
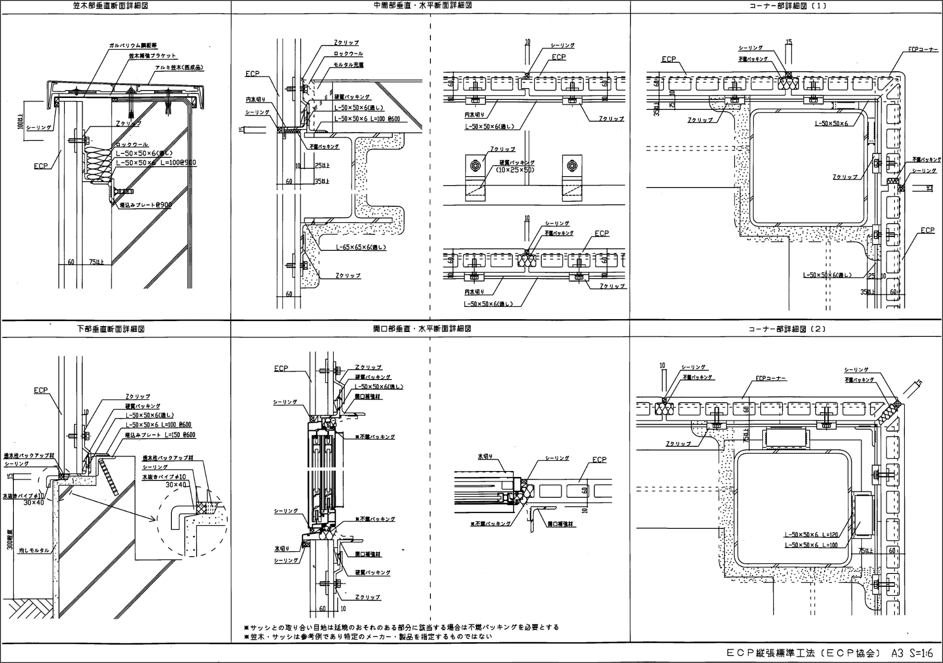
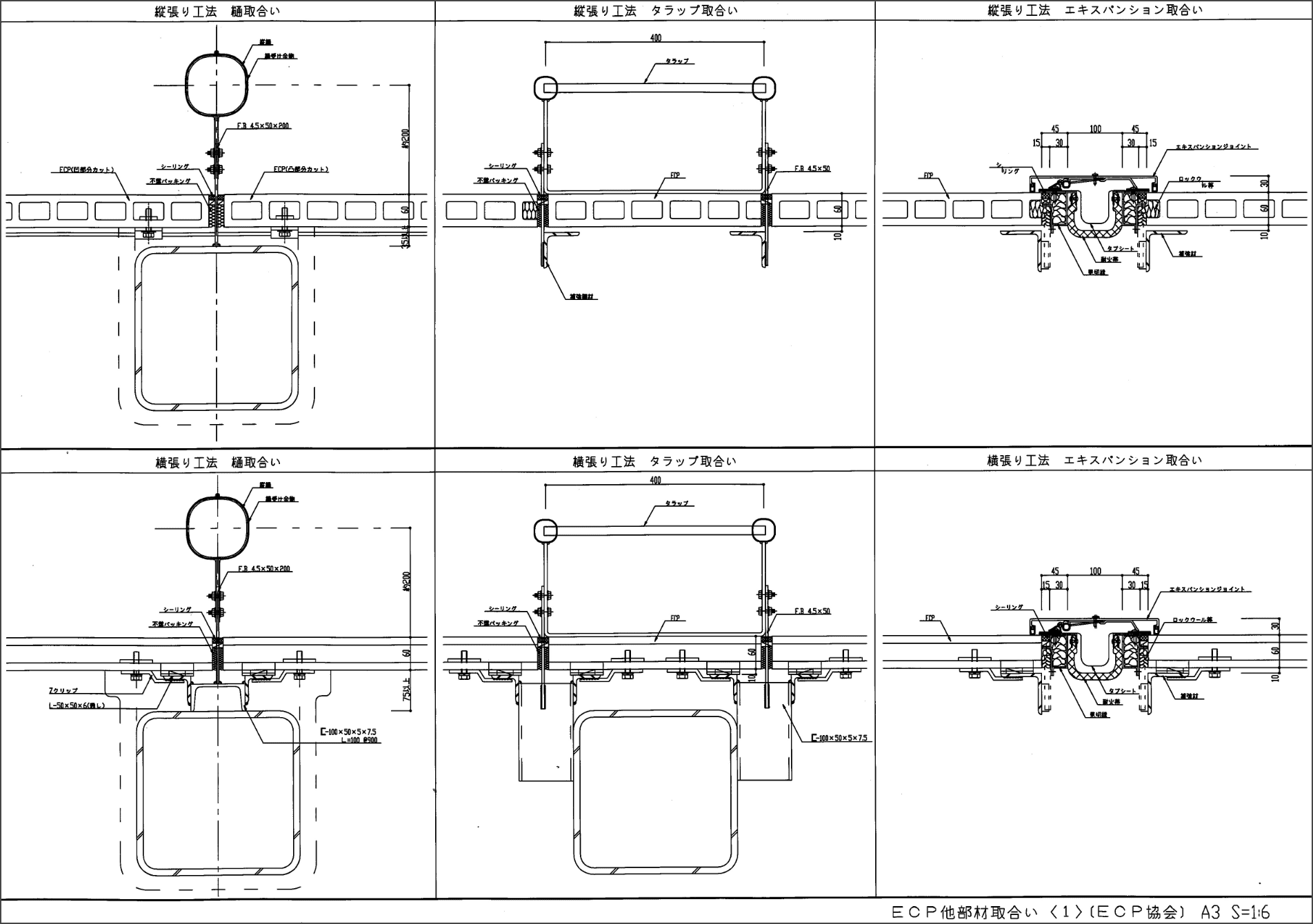
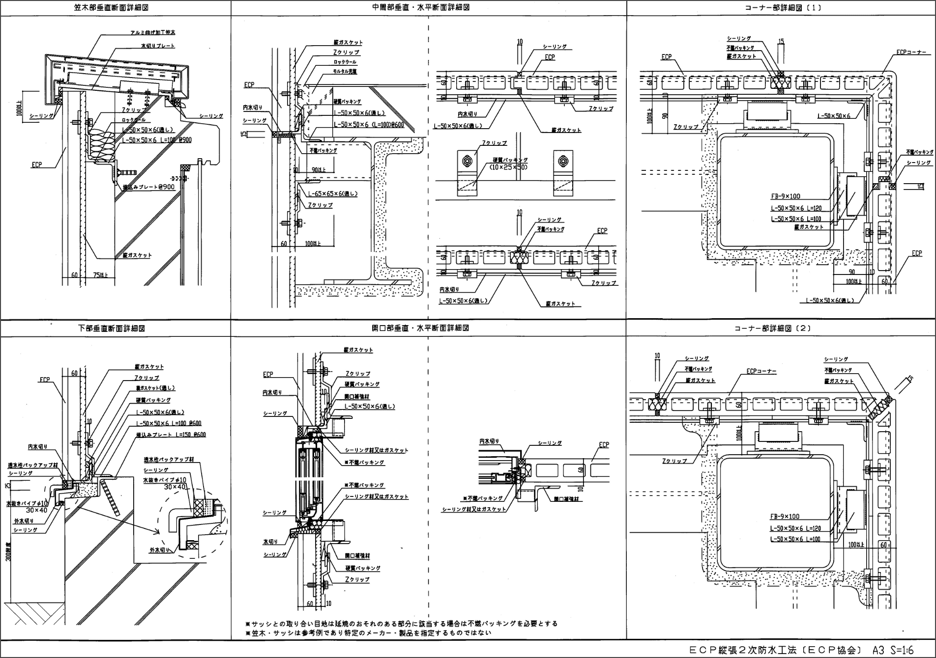
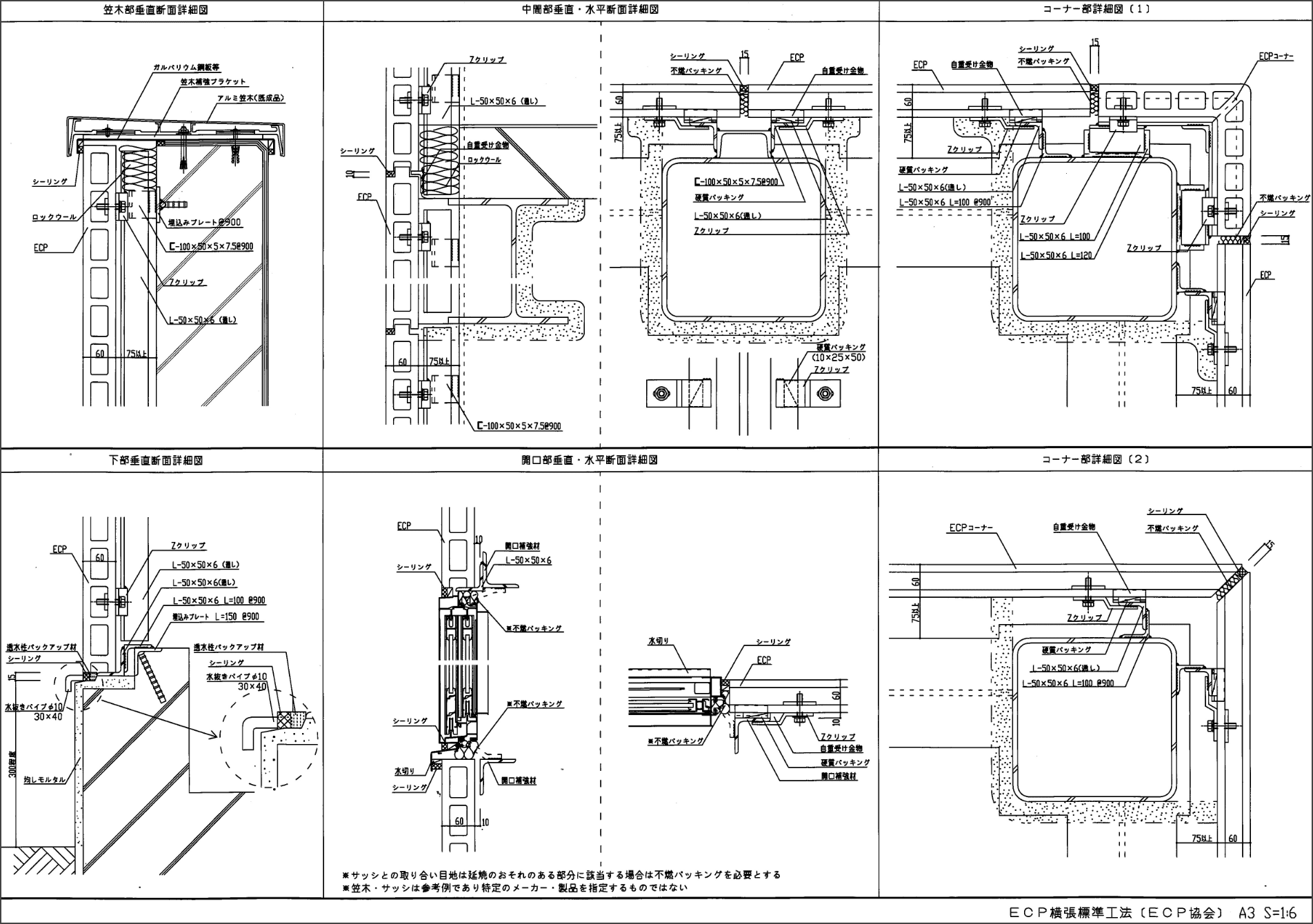
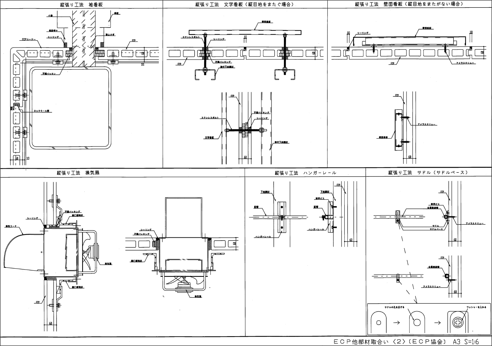
本詳細図は、納り例を示すもので、他部材も含めた
物性を保証するものではありません。
また、ECPの工事範囲を示すものでもありません。

【ご注意】

  • [1]このCADデータは納まり例を示すものであり、全ての建物に適用できるものではありません。
  • [2]CADデータの利用は、使用者の責任においてお取り扱いくださるようお願いいたします。
  • [3]CADデータの内容を、ECP協会に無断で譲渡・販売を目的に複製することを禁じます。
  • [4]CADデータを利用したことによって起こる損害に対して、ECP協会は一切の責任を負いかねます。

1次防水工法詳細図

2次防水工法詳細図

その他詳細図

  • TOP
  • CADデータ